Real estate infomation

トップページ > 野々市市御経塚三丁目②号棟
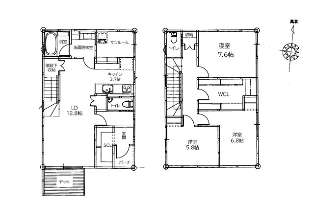
野々市市御経塚三丁目②号棟
詳細情報
| 種別 | 新築分譲住宅 |
|---|---|
| 価格 | 御成約 |
| 所在地 | 石川県野々市市御経塚3丁目 |
| 土地面積 | 実測/173.41㎡(52.45坪) |
| 延床面積 | 108.33㎡(32.70坪) |
| 間取/構造 | 3LDK |
| 用途地域 | 第二種住居地域 |
| 建蔽率/容積率 | 60%/200% |
| 道路 | 南 幅員/約5.99m |
| 間口 | 8.55m |
| 駐車 | 3台 |
| 交通 | のってぃ北部 あやめバス停 下車徒歩4分 |
| 小/中学校 | 御園小学校/布水中学校 |
| 備考 |
取引態様:売主
Contact



